23Ft One Room Mobile Medical Clinic
The Ford E-350 is a nimble and versatile single-room unit that maximizes operational efficiency with front and rear access points. It’s ideal for mobile service providers operating in challenging areas. Equipped with a standard one-room exam room, the unit’s true five-sided structure ensures industry-leading safety. The aerodynamic exterior design and comfortable interior make it stand out in the market.
See 360 View
Check Floor Plan
Vehicle Description
Overall
- Ford E-350 with 7.3L Gasoline Engine
- Automatic Transmission
- 12,500 lbs Gross Vehicle Weight Rating
- Cruise Control
- Extended View Exterior Mirrors
- 40 Gallon Fuel Tank To Minimize Fueling
- All Weather Tires for Multiple Terrains
- Steel Cage Shell Designed For Heavy Duty Operations
- Cage Primered with Rust Inhibitor to Minimize Corrosion
- Floor and Underbody Undercoated For Sound Deadening
- Insulated Walls For Sounds Deadening and Efficient Temperature Control
- White Fiberglass Rear Bumper with Built-In Step and License Plate Holder
- Driveshaft Guards
- Dual Batteries
- 3/4" Coosa Composite Subfloor
Exterior
- Corrosion Free Fiberglass Body Exterior
- High Visibility LED Exterior Lighting
- Lower Body Skirt Panels For Superior Appearance
- Exterior Door for Simplified Generator Access
- Stainless Steel Wheel Covers
Interior
- Commercial Grade Smooth Fiberglass White Interior Walls and Ceiling
- 74" Interior Height
- Completely Flat Floor
- Commercial Flooring with Wood Appearance
- 4" x 11" Interior Bright White LED Lighting Throughout Vehicle
- Gray Vinyl Padded Corner Boards and Door Trim
- Vented Header Compartment Above Driver Area For Electricals
Entrances
- 1520 Series Sedan Passenger Entry Door with Window
- Anti Skid Entrance Steps
- High Visibility Yellow Step Nosing at Entrance
- Medical Grade Stainless Steel Assist Rails
- 1520 Series Rear Exit Door with Window
Cab Area
- Bluetooth Stereo
- Comfortable Bucket Driver and Passenger Seats with Armrest
- RVS Backup Camera System with Rear and Side Cameras and 7" LED Monitor
- Fiberglass Running Boards (Driver & Co-Pilot)
- Solid Wall between Body with Curtain Covered Access For Easier Maneuverability
Electrical
- Commercial Grade Cummins Onan 4kw Generator with Prep Kit
- Generator Remote Start System
- Commercial Grade 110V Electrical System
- 50 Amp Shore Power with 28 ft length Cord
- 50 Amp Power Converter and Transfer Switch
- Interior 110V Outlets Throughout Vehicle
- Weather Resistant Exterior 110V Outlet
- 2000W Inverter located in the B-Pillar
- One Constantly Hot 110V Outlet For Fridge
- Master Battery Disconnect Switch
Climate Control
- 110V 13,500 BTU Rooftop Air Conditioner
- 14" Roof Vent
- 110V 3,400 BTU Heater
Safety
- 5 lb Fire Extinguisher
- Smoke and Carbon Monoxide Detector
- Backup Alarm
- Safety Triangles For Roadside Emergency
- Eye Wash Station
- 24 Unit First Aid Kit
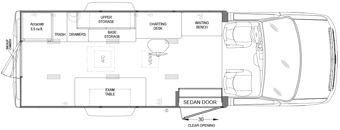
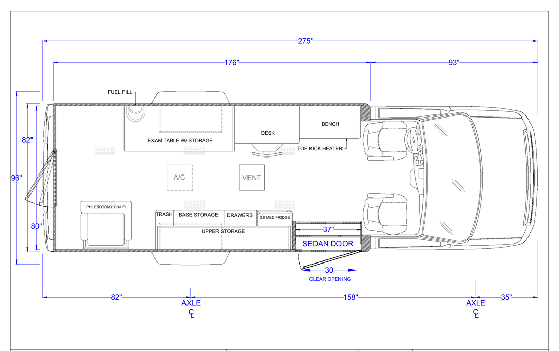
Rear Exam Room
- Exam Bench with Locking Cabinetry Underneath
- Check In Desk with Office Chair
- Waiting Bench
- Physicians Locking Upper and Lower Cabinets
- Corian Countertop
- Under Cabinet LED Lighting
- 5.5 cu ft Medical Grade Refrigerator
- Sharps Disposal with Medical Glove Disposal Underneath
- Hand Sanitizer System
- Waste Receptacle
Common Options
- Vehicle Based WiFi Internet Access
- Power Awning with LED Scene Lighting
- Welch Allyn Diagnostic Board
- Full Wrap Exterior Graphics Package
- Delivery and On-Site Training Package
- Additional Options Available
Customers have to say:
FAQ
Do we need a Commercial Driver License (CDL) to drive a TESCO Specialty Vehicle?
Our Vehicles do not require a special drivers license. They are designed to be under CDL requirements of a Gross Vehicle Weight Rating of 26,000lbs or less.
Are your vehicles commercial grade?
Our vehicles are NEVER built from retrofitted RV’s which are not designed to hold up to the operational use of medical clinics. Each TESCO Specialty Vehicles is custom built for its commercial application, with steel body construction directly to the chassis. We welcome the opportunity to show you the difference and review with you our manufacturing process.
Where do you ship your vehicles?
We ship our vehicles to every state in the US and have the capabilities to ship internationally.
Do you offer Warranty Coverage?
Yes. Each vehicle comes with a 3 to 5-year warranty for the chassis and body. Please contact us to learn more about our various warranty coverages.
What do I need to consider when starting a mobile unit program?
There are several key strategic areas to consider. At TESCO we offer a free consultation with our Director of Specialty. Our director has a clinical background and years of healthcare service line development, including real life experience with deploying a mobile unit program. We will be able to offer guidance on market research, setting a budget, design, and other strategic operational considerations. Please feel free to schedule appointment here.
How do we power our mobile unit?
Every unit comes with a commercial grade generator and shore power capabilities. Shore power can provide the unit access to power at your parking locations to run your mobile unit electrical systems without use of generator. Please schedule a call with us to learn more about our custom electrical solutions.
What training and support is offered?
We offer onsite training at delivery of your unit, and ongoing virtual training support. We also offer preventative maintenance tools for your unit.
Do you offer Financing?
We have unique leasing programs. Please schedule a meeting with us to learn more about our financing and leasing options.
Can we trade in our used mobile unit?
We offer a robust used unit program. Please schedule a call with us to discuss your needs and current used mobile unit.
Get Started with One of Our Expert Sales Associates
When you work with TESCO Specialty Vehicles you know you’re getting proven quality from a trusted dealer. Get started with us today to see why we’re one of the largest dealerships handling new and used specialty vehicle sales in the nation.





















