40ft Three Room with Dual Entry Wheelchair Lift
Our new flagship Freightliner mobile unit offers wheelchair accessibility and two private entry doors, with a length of 40 feet. It has three entry points and three private rooms, ideal for multi-modality healthcare services like dental or primary care. The straight wall exterior design and comfortable interior add to its ample room, and standard features include an exam table, medical-grade fridge, and bathroom. This mobile unit offers top-notch stability, comfort, dependability, quality, and safety, making it a class leader in the market for any customer application.
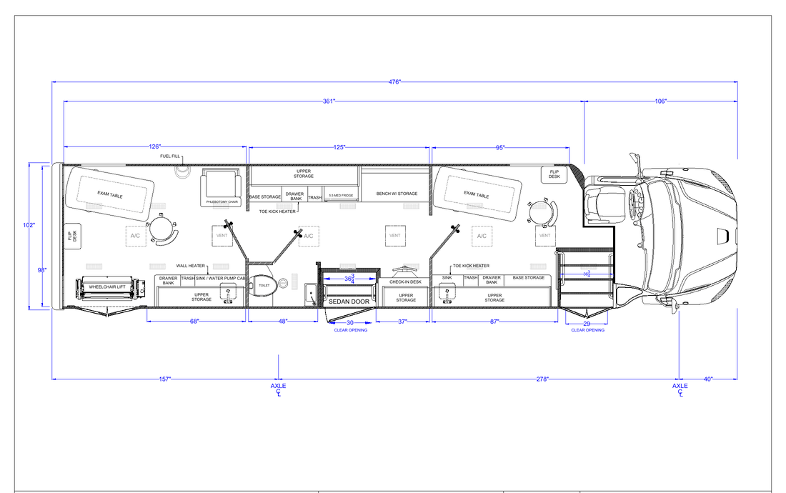
Check Floor Plan
Vehicle Description
Overall
- Freightliner S2C with 6.7L Diesel Engine with Fast Idle
- Allison 2200 5-Speed Automatic Transmission
- 26,000 lbs Gross Vehicle Weight Rating
- Cruise Control
- Power Steering
- Air Brakes
- Air Ride Suspension with Dump Valve
- Engine Block Heater
- Alternator 320 Amps
- Driveshaft Guards
- Triple 950 CCA Batteries
- 7 1/2" x 16" Mirrors with 7 1/2" x 7" Convex Mirrors
- Dual 40 Gallon Fuel Tanks To Minimize Fueling
- Steel Wheels with All Weather Tires for Multiple Terrains
- Steel Cage Shell Designed For Heavy Duty Operations
- Cage Primered with Rust Inhibitor to Minimize Corrosion
- Floor and Underbody Undercoated For Sound Deadening
- 5/8" Advantec Industrial Composite Floor
- Insulated Walls For Sounds Deadening and Efficient Temperature Control
- White Fiberglass Rear Bumper with Built-In Step and License Plate Holder
Exterior
- Corrosion Free Fiberglass Body Exterior
- High Visibility LED Exterior Lighting
- Contoured Fiberglass Lower Body Skirt Panels For Superior Appearance
- Exterior Door for Simplified Generator Access
- Dual 36" Wide Locking Exterior Storage Compartments
- 72" Wide Locking Exterior Storage Compartment
- Stainless Steel Wheel Covers
- Front Tow Hooks
- Dual Egress Bay Windows 19 3/8" x 29" with Top T-Slider
Interior
- Commercial Grade Smooth Fiberglass White Interior Walls and Ceiling
- 80" Interior Height
- Completely Flat Floor
- Commercial Flooring with Wood Appearance
- 4" x 11" Interior Bright White LED Lighting Throughout Vehicle
- Gray Vinyl Padded Corner Boards and Door Trim
- Vented Header Compartment Above Driver Area For Electricals
Entrances
- Bus Style Heavy Duty Electric Entrance Door For Ambulatory Entrance
- 1520 Series Sedan Entry Door With Window
- Stainless Steel Stepwell Built into the Body
- Anti Skid Entrance Steps
- High Visibility Yellow Step Nosing at Sedan Entrance
- Medical Grade Stainless Steel Assist Rails
- Wheelchair Accessible Double Deluxe Door Entrance into Rear Exam Room
- 800 Lb Certified Braun Wheelchair Lift with Remote Pendant
- Wheelchair Lift Safety Belt
Cab Area
- Bluetooth Stereo
- Air-Ride Driver High-Back Seat with Armrests
- RVS Backup Camera System with Rear and Side Cameras and 7" LED Monitor
- Driver Friendly Command Center w/ lighted Switches
- Diamond Plate Running Board Step (Driver)
- Solid Wall between Body with Curtain Covered Access For Easier Maneuverability
Electrical
- Commercial Grade Cummins Onan Quiet Diesel 12kw Generator With Prep Kit
- Generator Remote Start System
- Big Foot Leveling System
- Commercial Grade 110V Electrical System
- 50 Amp Shore Power with 28 ft length Cord
- 50 Amp Power Converter and Transfer Switch
- Interior 110V Outlets Throughout Vehicle
- Weather Resistant Exterior 110V Outlet
- 2000W Inverter Located in the B-Pillar
- One Constantly Hot 110V Outlet For Fridge
- Master Battery Disconnect Switch
Climate Control
- Three 110V 15,000 BTU Rooftop Air Conditioners
- Three 14" Powered Roof Vents
- Three 110V 3,400 BTU Floor Heaters
Lavatory
- Lavatory Room with Toilet, Sink, Mirror, Paper Towel Dispenser, and Trash
- Roof Vent
- Hand Wash and Foamy Sanitizer
- Plumbing System with Fresh Water and Black Water Tanks
- Electric Tank Monitoring System
- Sewer Hose with Carrier
Safety
- 5 lb Fire Extinguisher
- Smoke and Carbon Monoxide Detector
- Backup Alarm
- Safety Triangles For Roadside Emergency
- Eye Wash Station
- 24 Unit First Aid Kit
Front Exam Room
- Phlebotomy Chair
- Physicians Locking Upper and Lower Cabinets
- Corian Countertops
- Under Cabinet LED Lighting
- Stainless Steel Sink With Heat
- Charting Desk with Chair
- 5.5 cu ft Medical Grade Refrigerator
- Waste Receptacle
- Hand Sanitizer System
- Sharps Disposal with Medical Glove Disposal Underneath
Middle Room
- Ritter 204 Exam Table with Stirrups
- Physicians Locking Upper and Lower Cabinets
- Corian Countertops
- Under Cabinet LED Lighting
- Check-In Desk with Chair
- Waste Receptacle
- Hand Sanitizer System
Wheelchair Accessible Rear Exam Room
- Ritter 204 Exam Table with Stirrups
- Physicians Locking Upper and Lower Cabinets
- Corian Countertop
- Under Cabinet LED Lighting
- Stainless Steel Sink with Heat
- Wall Mounted Flip-Up Desk
- Hand Sanitizer System
Common Options
- Front Exam Room Stainless Steel Sink with Heat
- Waiting Bench with Under Storage
- Power Awning with LED Scene Lighting
- Vehicle Based WiFi Internet Access
- Welch Allyn Diagnostic Board
- Full Wrap Exterior Graphics Package
- Specimen Pass Thru
- Delivery and On-Site Training Bundle
- Additional Options Available
Customers have to say:
FAQ
Do we need a Commercial Driver License (CDL) to drive a TESCO Specialty Vehicle?
Our Vehicles do not require a special drivers license. They are designed to be under CDL requirements of a Gross Vehicle Weight Rating of 26,000lbs or less.
Are your vehicles commercial grade?
Our vehicles are NEVER built from retrofitted RV’s which are not designed to hold up to the operational use of medical clinics. Each TESCO Specialty Vehicles is custom built for its commercial application, with steel body construction directly to the chassis. We welcome the opportunity to show you the difference and review with you our manufacturing process.
Where do you ship your vehicles?
We ship our vehicles to every state in the US and have the capabilities to ship internationally.
Do you offer Warranty Coverage?
Yes. Each vehicle comes with a 3 to 5-year warranty for the chassis and body. Please contact us to learn more about our various warranty coverages.
What do I need to consider when starting a mobile unit program?
There are several key strategic areas to consider. At TESCO we offer a free consultation with our Director of Specialty. Our director has a clinical background and years of healthcare service line development, including real life experience with deploying a mobile unit program. We will be able to offer guidance on market research, setting a budget, design, and other strategic operational considerations. Please feel free to schedule appointment here.
How do we power our mobile unit?
Every unit comes with a commercial grade generator and shore power capabilities. Shore power can provide the unit access to power at your parking locations to run your mobile unit electrical systems without use of generator. Please schedule a call with us to learn more about our custom electrical solutions.
What training and support is offered?
We offer onsite training at delivery of your unit, and ongoing virtual training support. We also offer preventative maintenance tools for your unit.
Do you offer Financing?
We have unique leasing programs. Please schedule a meeting with us to learn more about our financing and leasing options.
Can we trade in our used mobile unit?
We offer a robust used unit program. Please schedule a call with us to discuss your needs and current used mobile unit.
Get Started with One of Our Expert Sales Associates
When you work with TESCO Specialty Vehicles you know you’re getting proven quality from a trusted dealer. Get started with us today to see why we’re one of the largest dealerships handling new and used specialty vehicle sales in the nation.


























