Bloodmobile
Available on Ford E-450, Ford F-550, Freightliner, and Winnebago chassis. Our bloodmobile builds range in size from 28 ft to 40 ft. All vehicles are constructed with steel beam framing and a reinforced fiberglass body for strength, longevity, and reduced maintenance. Bloodmobiles can be equipped with single or dual generator option and include 50-amp shore power capability to ensure reliable power anywhere.
Virtual Tours:
J38S Bloodmobile Virtual Tour
South Texas Bloodmobile Virtual Tour
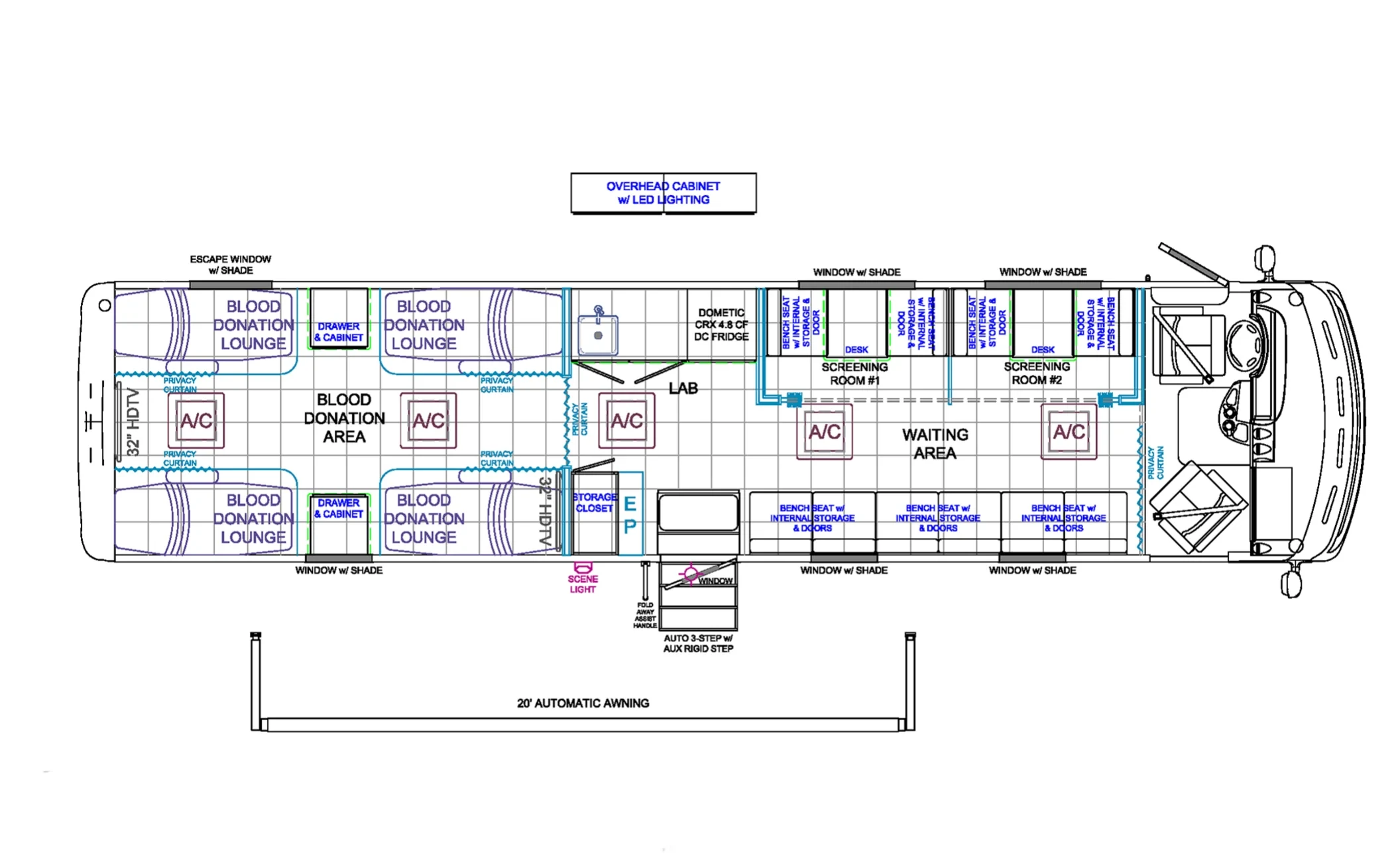
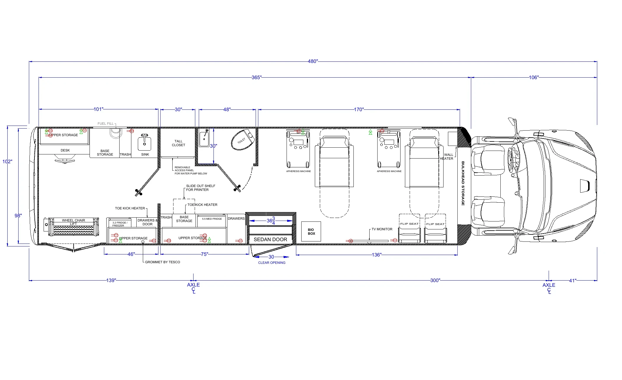
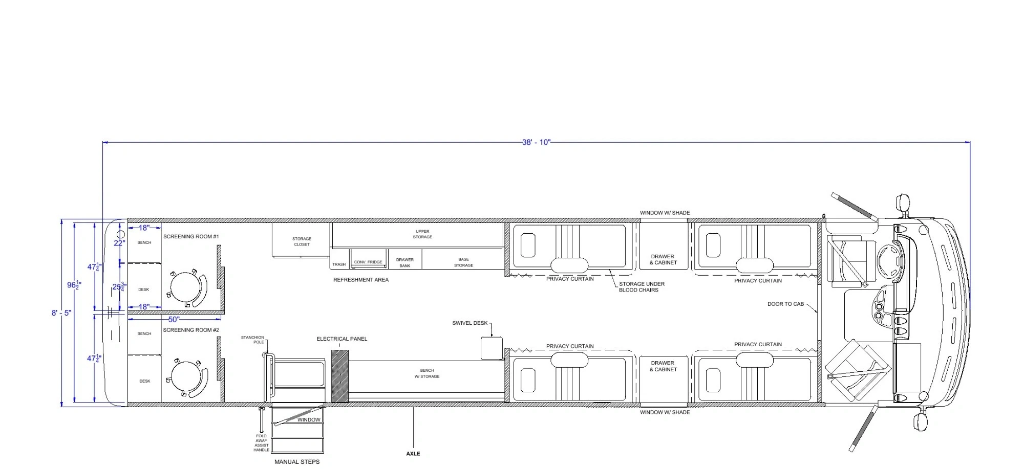
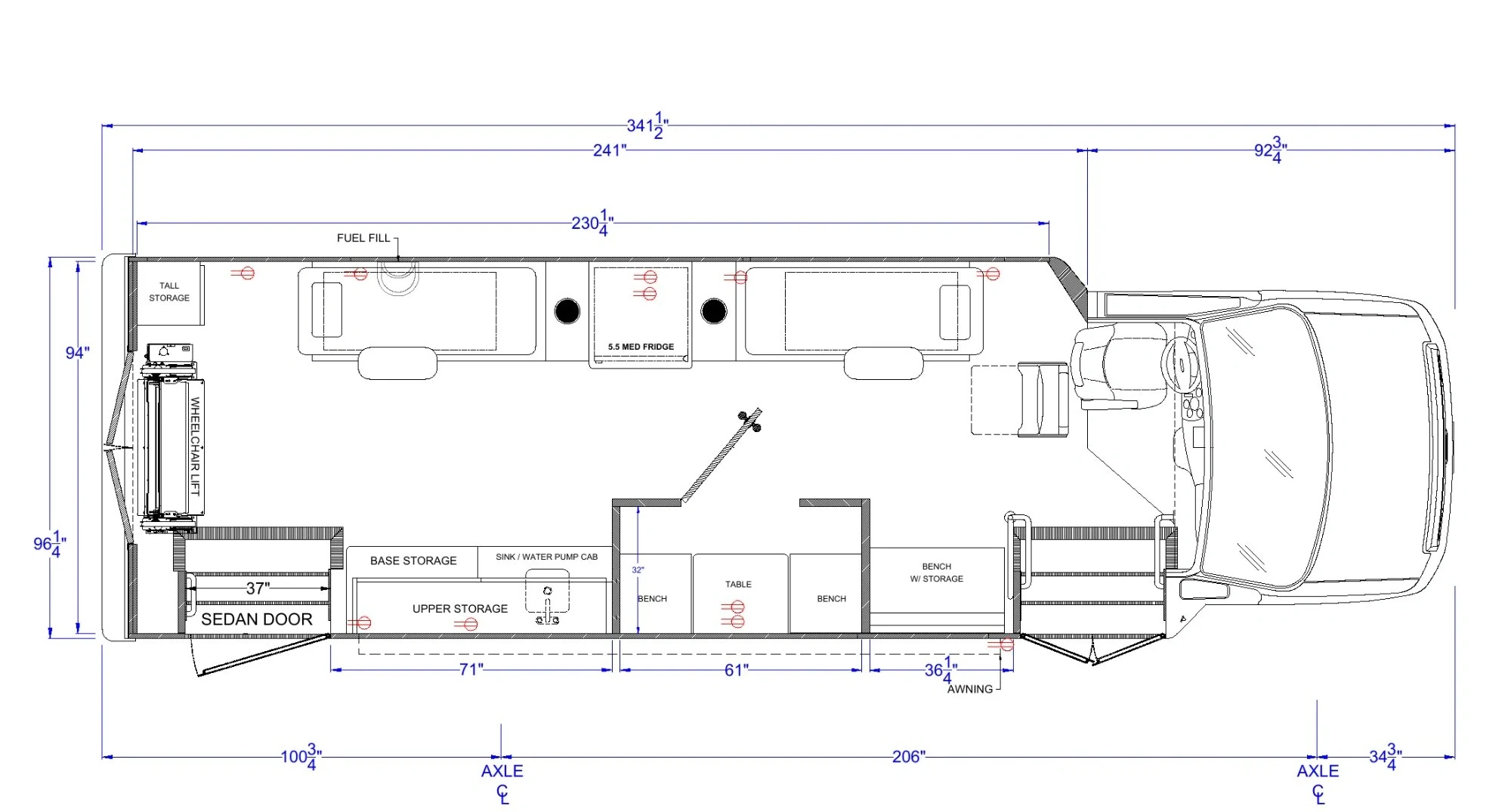
Floorplans:
Key Features:
Dacor Blood Donation Chairs. Comfortable, adjustable chairs designed specifically for safe and efficient blood collection.
Patient Screening Rooms. Private areas for pre-donation health assessments and donor eligibility screening.
Canteen Area. Dedicated refreshment space where donors can rest and recover after their donation.
Ample Storage. Generous storage capacity for supplies, equipment, and collected blood products.
Custom Floorplans. Adaptable layouts designed around your organization’s mission and collection needs.
Mobile Convenience. Bring blood collection services directly to communities, workplaces, and events.
These bloodmobiles are ideal for providing safe blood collection to anywhere it is needed. When access is limited these mobile blood donation units provide a critical service and eliminate the barriers faced to healthcare across the nation.
Benefits of a Bloodmobile:
Expands your donor reach and increases collection capacity — enabling you to serve new communities, host more drives, and maintain a stable blood supply without relying solely on fixed-site locations.
Custom floorplans designed around your organization's mission — adaptable layouts to support whole blood drives, specialty collections, donor screening, and staff workflow efficiency.
Breaks down barriers between providers and donors — creating convenient, accessible opportunities that strengthen community engagement and improve overall blood supply availability.
These purpose-built bloodmobile units bring safe, convenient blood donation services directly to schools, hospitals, businesses, rural areas, and anywhere it's needed — expanding your donor reach and strengthening community health.





